Vivienda segregada 2 en Getxo
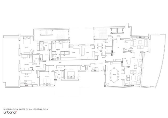
Vivienda segregada 2 en Getxo Para esta vivienda, que es el resultado de un proyecto de segregación de otra mayor de 400m2 ubicada en Getxo (Bizkaia), buscábamos sobre todo una vivienda muy cómoda, con espacios amplios y funcionales. Se diseñaron dos salones contíguos; una zona de descanso y lectura provista de una chimenea restaurada que pertenecía a la antígua vivienda y otra zona…











